Toggle navigation SEARCH FOR PROPERTY

1250 sqft, 3 Beds Under Construction Apartment/Flats for Sale at Bashundhara R/A  Sale

Call for price

Apartment/Flats for Sale

Location Bashundhara R/A, Dhaka.
Beds
03 Beds
Beds
03 Baths
Beds
1250 Sq.ft

01939919xxx

Property Summary

  •   1250 SQFT Ongoing Flat for Sale at Basundhara
  •   Apartment/Flats
  •   Sale
  •   Bashundhara R/A , Dhaka
  •   Under Construction
  •   1250 sqft
  •   New
  •   Any Floor
  •   03
  •   03
  •   4
  •   Parking 1
  •   8
  •   Semi-Furnished
  •   North Facing
  •   6 katha

Property Features

Property Description

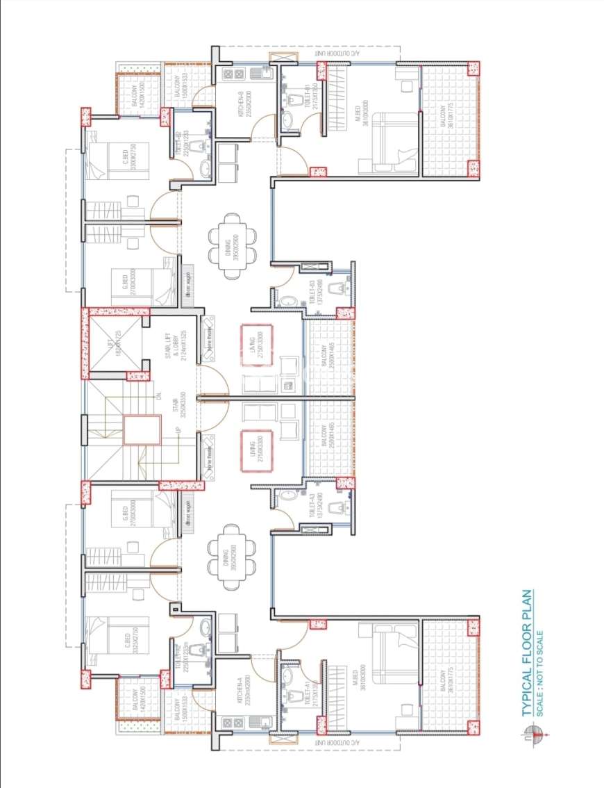
Project Name              :           IMAGINE PARL WOOD

Address                       :           Plot- 620 & 621, Road- 27, Block- L, Bashundhara R/A.

Size                             :           1250 SFT,

Land                            :           6 Katha

Facing                         :           North

Building Height            :           G+8

Total Units                   :           6 no’s

Parking                        :           6 no’s

Handover                    :           December’ 2028

 

Apartment inside:         

3 Bedrooms;

1 Living Rooms;

3 Bathrooms;

Dressing Area;

3 A/C Provision;

1 Car parking spaces;

Washing Machine Provision;

9 unit’s emergency generator backup.

Floor Plan

Location View

Property Owner Details


Send Message to Property Owner

Similar Properties


JBS Zenith , Apartment/Flats

2200 sqft, 4 Beds Apartment/Flats for Sale at Bashundhara R/A

Location   Bashundhara R/A, Dhaka

2.50 Cr. /Total Price

ELH Jakir Kotage, Apartment/Flats

1550 sqft, 3 Beds Under Construction Apartment/Flats for Sale at Bashundhara R/A

Location   Bashundhara R/A, Dhaka

Call for price

Anwar Landmark Salahuddin Garden, Apartment/Flats

2023 to 2043 sqft, 4 Beds Flats for Sale at Bashundhara R/A

Location   Bashundhara R/A, Dhaka

Call for price

Nagar Dolonchapa, Apartment/Flats

2450 sqft, 4 Beds Almost Ready Apartment/Flats for Sale at Bashundhara R/A

Location   Bashundhara R/A, Dhaka

Call for price

Tokyo Lake Castle, Land Sharing Flat

1700 sqft, 3 Beds Upcoming Land Sharing Flat for Sale at Bashundhara R/A

Location   Bashundhara R/A, Dhaka

92.65 Lac /Total Price

JBS Halima Neer, Apartment/Flats

2150 sqft, 4 Beds Under Construction Apartment/Flats for Sale at Bashundhara R/A

Location   Bashundhara R/A, Dhaka

1.97 Cr. /Total Price

Dreamway Little Yard, Land Sharing Flat

1550 sqft, 3 Beds Upcoming Land Sharing Flat for Sale at Bashundhara R/A

Location   Bashundhara R/A, Dhaka

Call for price

NAGAR DOLONCHAPA, Apartment/Flats

2450 sqft, 5 Beds Under Construction Apartment/Flats for Sale at Bashundhara R/A

Location   Bashundhara R/A, Dhaka

Call for price

বসুন্ধরা আবাসিক এলাকায় ১৬২৫ বর্গফুট রেডি ফ্ল্যাট বিক্রয়, Apartment/Flats

1625 sqft, 3 Beds Ready Apartment/Flats for Sale at Bashundhara R/A

Location   Bashundhara R/A, Dhaka

1.73 Cr. /Total Price

ELH Mamun Royal Palace, Land Sharing Flat

2000 sqft, 4 Beds Upcoming Land Sharing Flat for Sale at Bashundhara R/A

Location   Bashundhara R/A, Dhaka

Call for price

DDPL Sunrise, Apartment/Flats

1500 sqft 3 Beds Upcoming Apartment/Flats for Sale at Bashundhara R/A

Location   Bashundhara R/A, Dhaka

1.44 Cr. /Total Price

Anwar Landmark Azalea, Apartment/Flats

2270 sqft, 3 Beds Under Construction Apartment/Flats for Sale at Bashundhara R/A

Location   Bashundhara R/A, Dhaka

Call for price

২২০৫ বর্গ ফুটের ৪ বেড রুম ফ্ল্যাট বিক্রয় @ ব্লক আই বসুন্ধরা, Apartment/Flats

2202 sqft, 4 Beds Under Construction Apartment/Flats for Sale at Bashundhara R/A

Location   Bashundhara R/A, Dhaka

2.42 Cr. /Total Price

 TM Afia, Apartment/Flats

2530 sqft, 4 Beds Under Construction Apartment/Flats for Sale at Bashundhara R/A

Location   Bashundhara R/A, Dhaka

2.50 Cr. /Total Price

Dhakhina, Apartment/Flats

2235 sqft, 4 Beds Almost Ready Flats for Sale at Bashundhara R/A

Location   Bashundhara R/A, Dhaka

Call for price

MARC Chondrokotha, Apartment/Flats

1900 sqft, 3 Beds Under Construction Apartment/Flats for Sale at Bashundhara R/A

Location   Bashundhara R/A, Dhaka

1.95 Cr. /Total Price

DDPL Royel Heritage , Apartment/Flats

4360 sqft, 4 Beds Under Construction Apartment/Flats for Sale at Bashundhara R/A

Location   Bashundhara R/A, Dhaka

6.09 Cr. /Total Price

test